Techture offers precise, code-compliant Structural Construction Documentations that bridge the gap between design and execution. From 2D drafting to BIM integration, we deliver tailored outputs for global and project-specific standards.
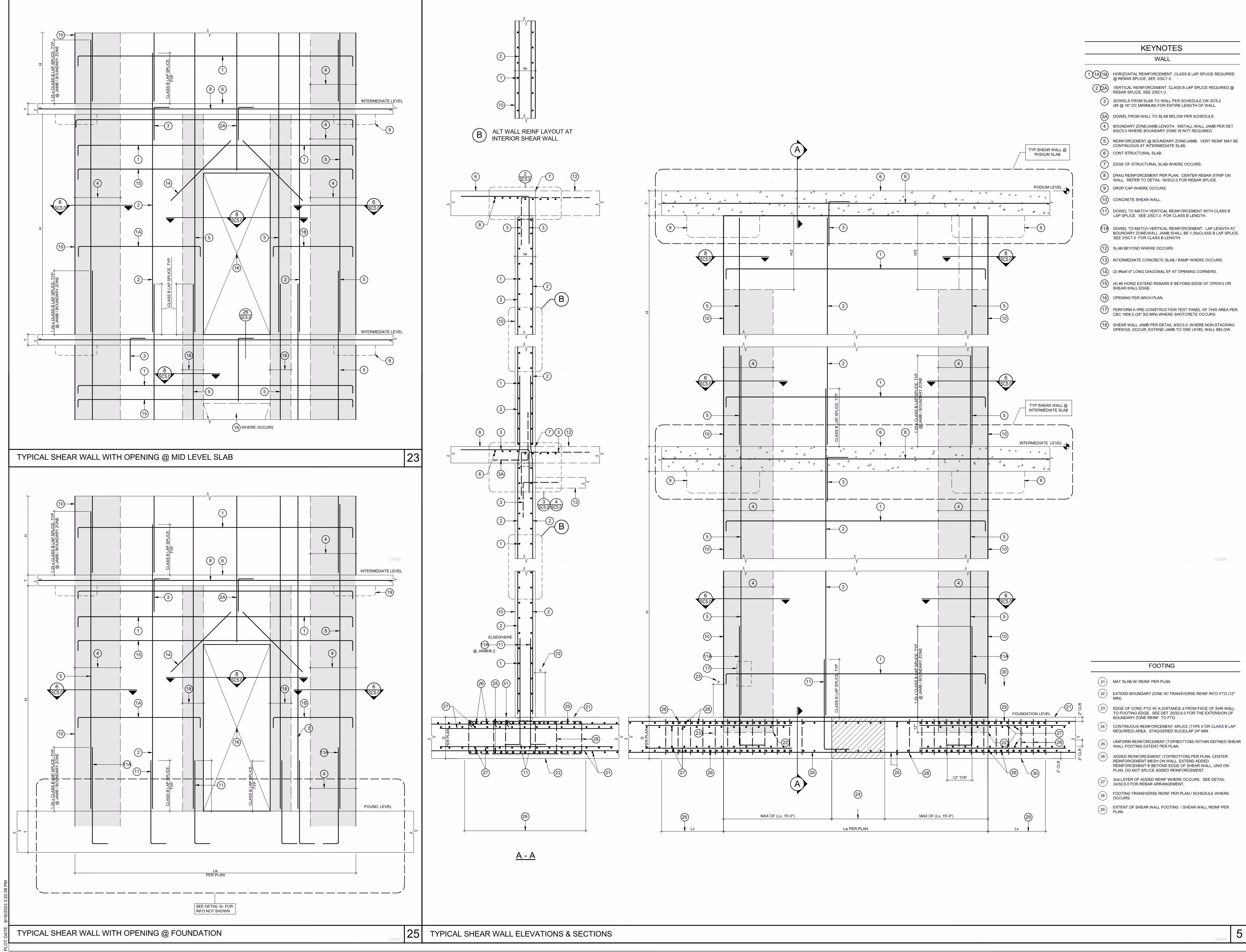
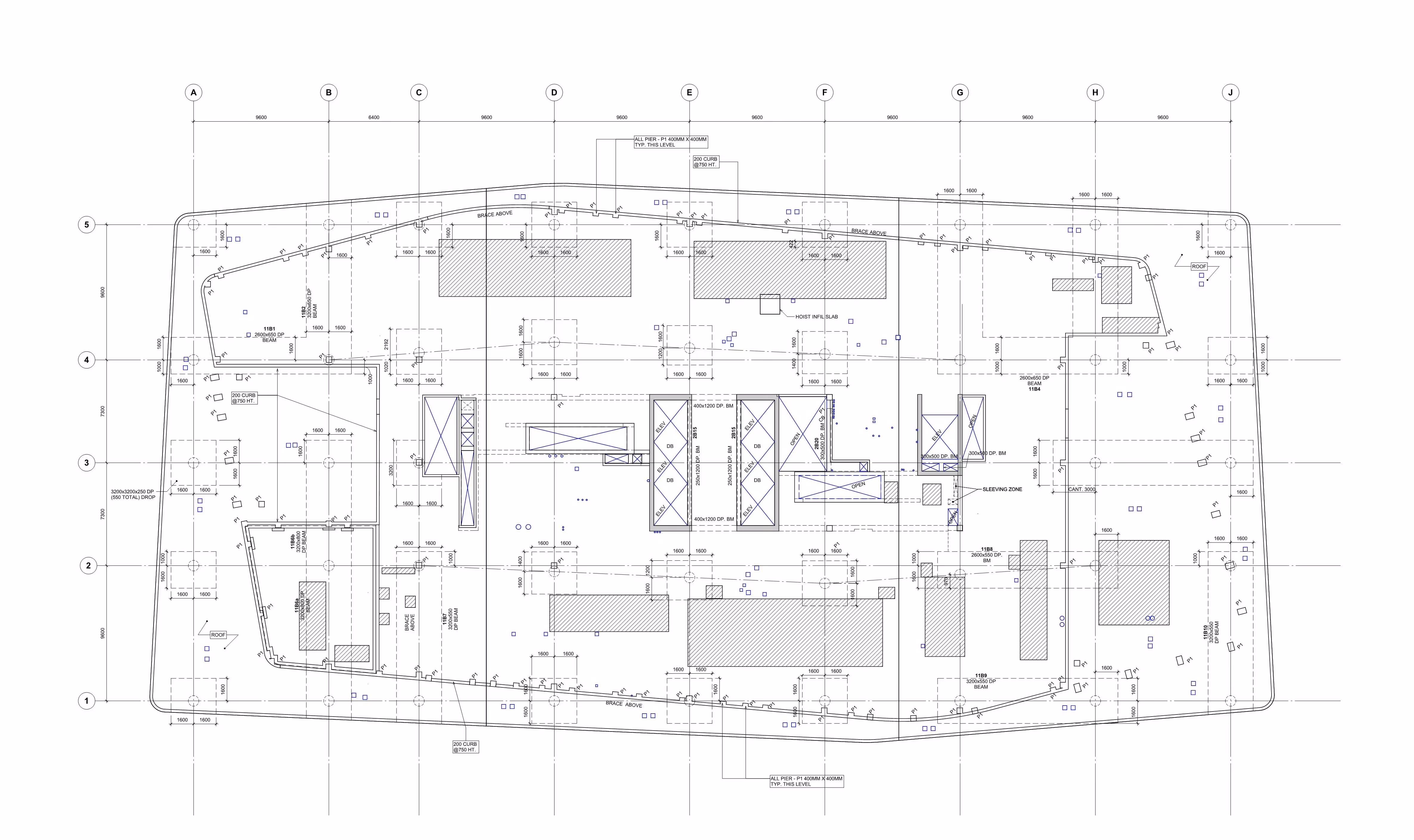
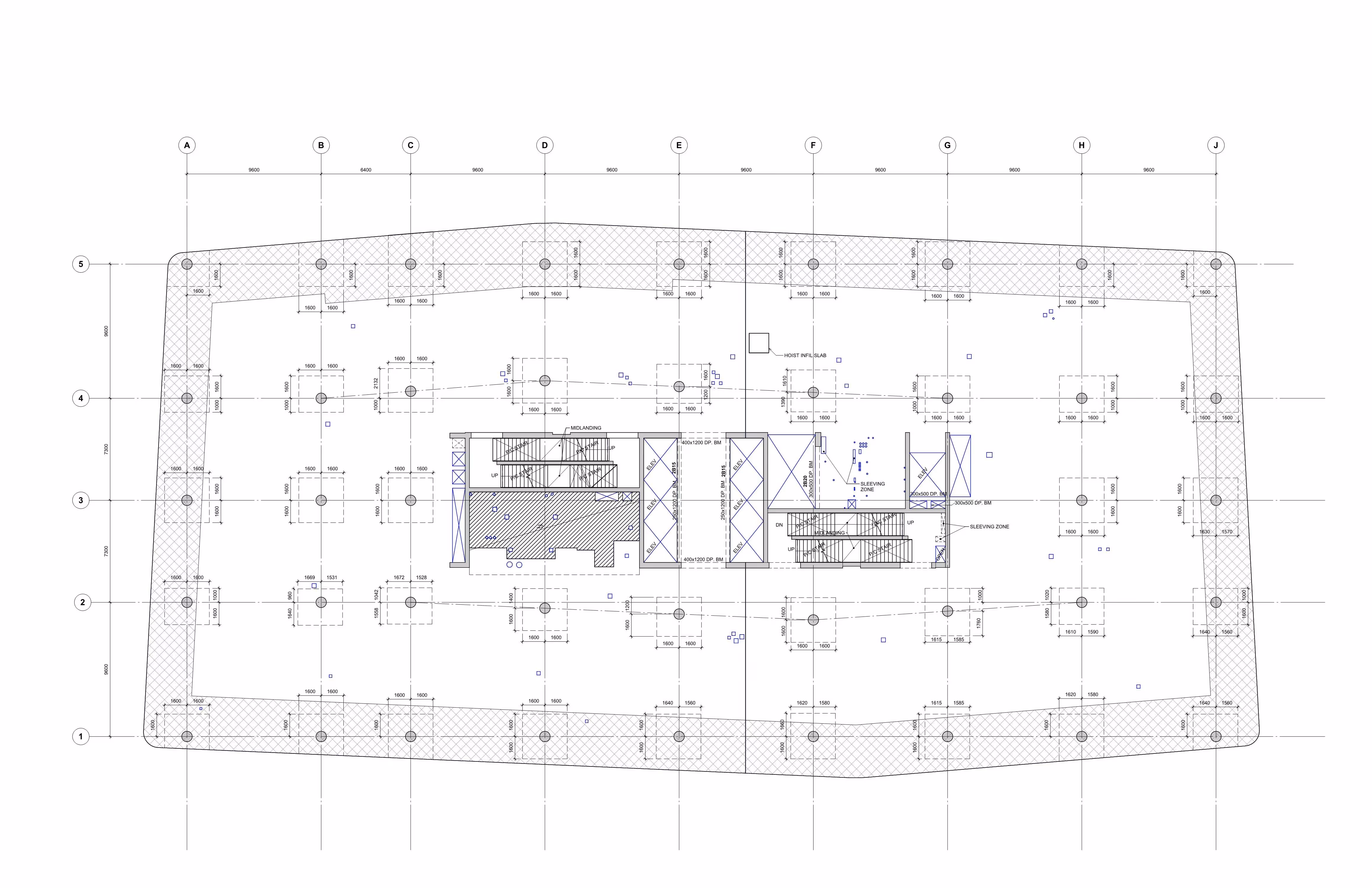
Request a CallOur well-coordinated structural construction documentation service transforms detailed BIM models into build-ready drawing sets. Our team starts by reviewing all structural inputs like design drawings, specifications, and consultant coordination requirements, to make sure the documentation accurately represents the structural intent. Using Autodesk Revit, AutoCAD, Advance Steel, and Tekla, we generate plans, sections, elevations, and schedules for concrete, steel, and timber systems with complete clarity and consistency. Our service ensures these documents incorporate every important structural component, such as foundation layouts, framing plans, slab edge details, core and shear wall drawings, column and beam schedules, and connection information. We also capture construction-critical details such as control joints, embed plates, openings, pour breaks, and MEP interface points. To ensure accuracy across disciplines & reduce errors during execution, all drawings are extracted directly from coordinated models.
We make sure each package surpasses our QA/QC checks to verify dimensions, annotations, standards, and constructability. We support contractors with revisions, markups, clash-resolved updates, and RFI responses throughout the project lifecycle, helping them gain reliable, coordination-focused drawing sets that minimize rework, enhance site efficiency.
With over a decade of experience in the AEC & BIM industry, Techture is serving as a leading BIM service provider globally. Helping architects, engineers, consultants, and owners gain clarity and control over their projects. Our strong portfolio stands out with 1100 + completed projects across educational, residential, healthcare, hospitality, industrial, commercial, and infrastructural sectors.
Build-Ready Documentation
Detailed structural CDs enable smooth execution, fabrication, and inspection across all phases.
Faster Turnaround & Revision Cycles
Our hybrid CAD+BIM approach allows for faster iterations and document updates with minimal rework.
Integrated BIM Coordination
Structural models are developed to integrate seamlessly with architectural & MEP BIM scopes for early clash detection & site optimization.
From Sketch to Model
Final MEP as-built drawings capture exact field conditions for long-term asset management.
Explore Techture’s global project portfolio, showcasing a decade of expertise in delivering high-quality Building Information Modeling (BIM) services for the AEC industry.
Trusted, Reliable, and Committed
Would you like to know more about our BIM and VDC Services & Solutions? Our Consultants and Engineers will be happy to help you.
Hear directly from our pleased clients about how our BIM solutions and Virtual Design and Construction (VDC) services transformed their project management strategy. These success stories demonstrate Techture's BIM/VDC Consulting Services that improve productivity, accuracy, and overall construction project success.







Connect with us to Streamline your construction process, reduce costs, and improve project efficiency with our expert-driven BIM & VDC solutions. To ensure seamless coordination, minimizing errors and delays, we help you to optimize workflows and maximize project success.
A complete set of structural construction documents usually consists of foundation plans, framing plans, structural sections, reinforcement details, connection details, and general structural notes. This gives the contractor a clear understanding of the structural construction and installation. The construction documents may also contain schedules and specifications used in the structure. Documentation plays a crucial role in ensuring that the structural design is correctly executed during the construction process.
Yes, structural construction documents can be developed from existing architectural or structural BIM models. We extract the structural details from the BIM model to create detailed construction documents. BIM-based processes improve the consistency of design models and construction drawings. This approach helps create accurate construction documents.
The coordination of the structural and architectural drawings is achieved through the coordination of the building information models and the review of the designs. The structural models and drawings are compared with the architectural models and drawings to ensure that there are no possible conflicts and discrepancies. Such coordination checks are conducted by our team, and the documentation is updated appropriately.
Yes, Techture does provide structural construction documentation that can support reinforced concrete as well as structural steel building systems. Our documentation includes detailed drawings of various structural components, including foundations, columns, beams, slabs, and structural steel framing components. These drawings provide contractors with detailed instructions for constructing various structural components.
Yes, structural construction documentation can be prepared for building permit applications and authority submissions. Our team can create drawings and documentation based on the specifications required for the project. Documentation provides the required structural information needed for the building permit and approval processes. Proper documentation can help ease the building permit and approval processes.