We help architects with our reliable architectural documentation that meets codes, avoids rework, and saves money.
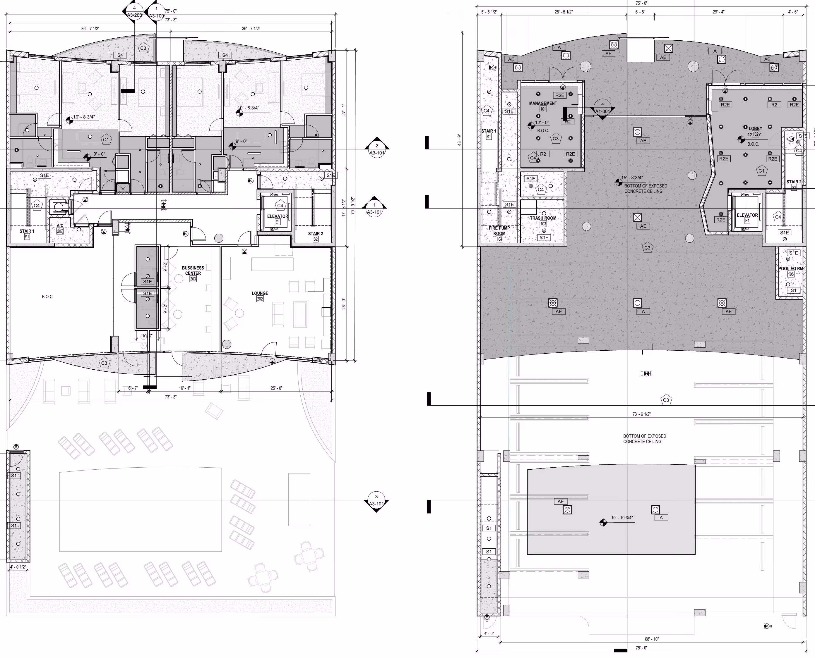
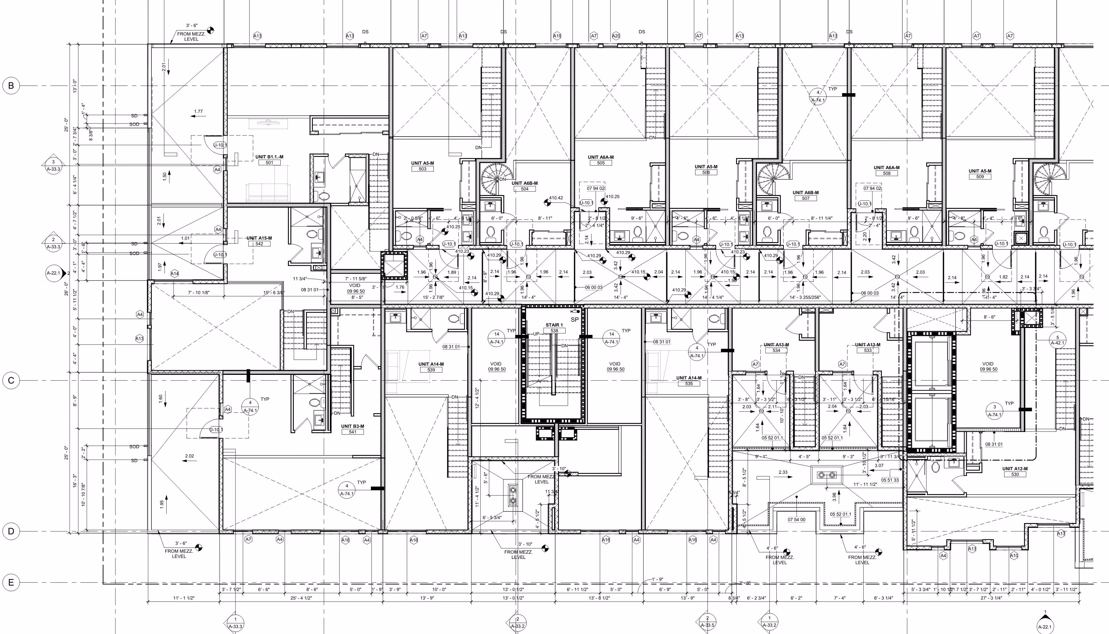
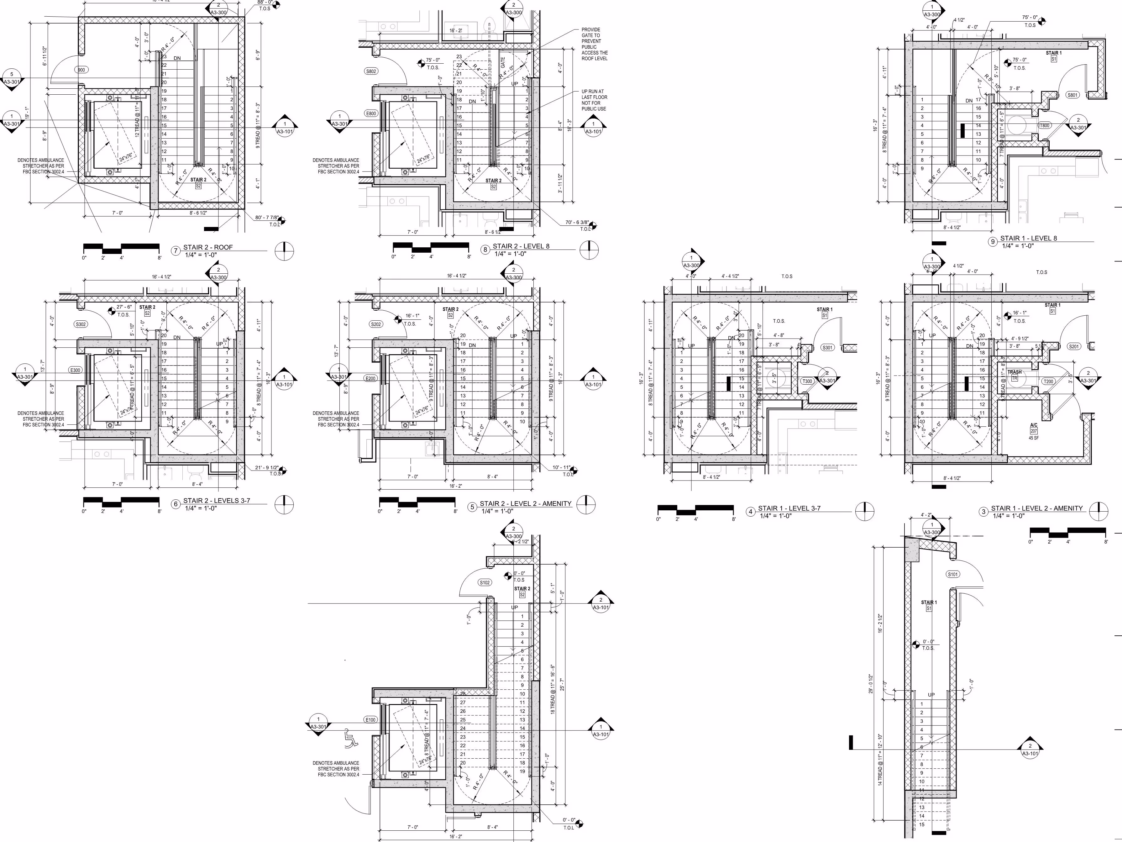
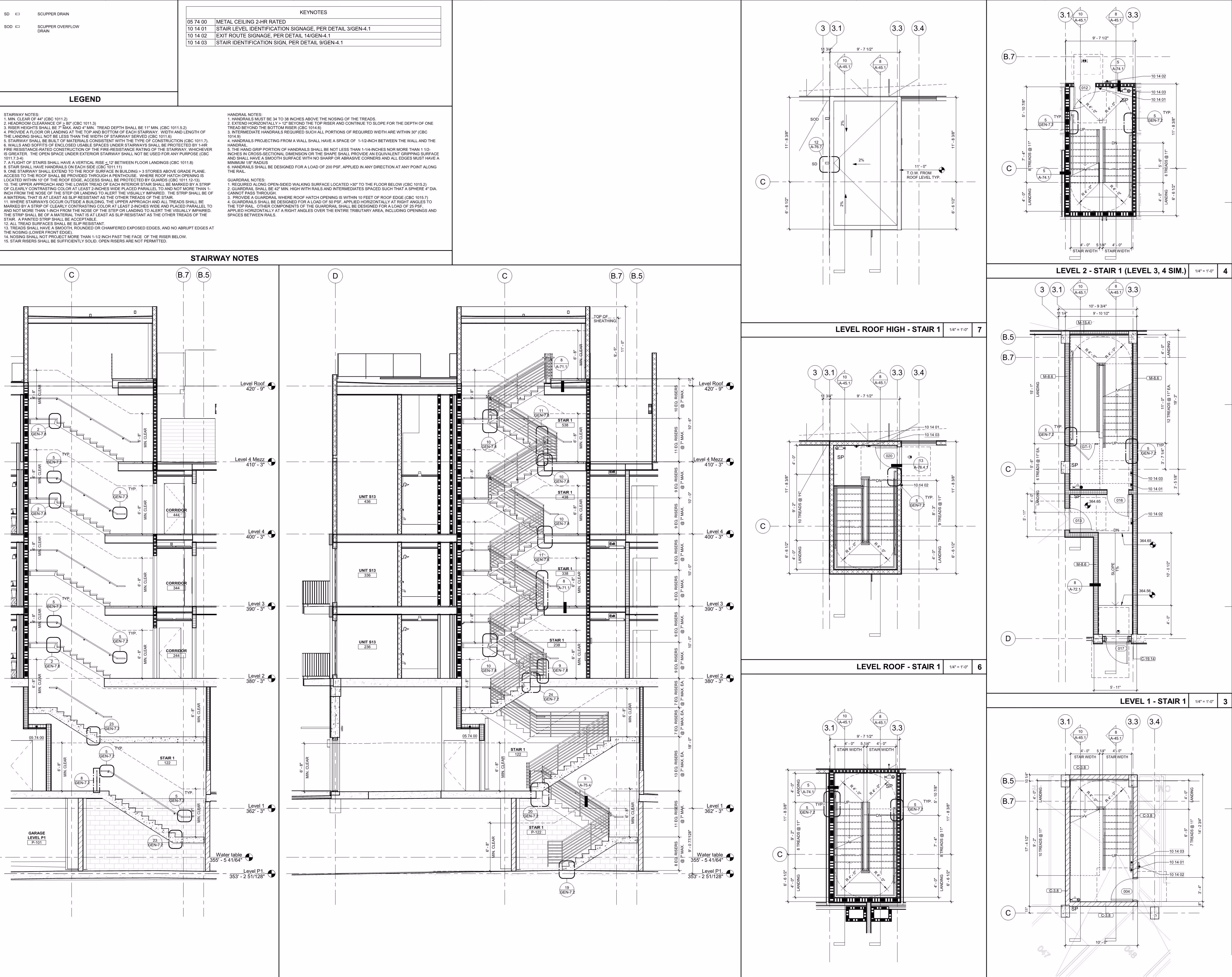
Request a CallOur architectural documentation service delivers fully coordinated drawing sets (CDs) that support every stage of a project, right from conceptual (LOD 100) to construction-ready (LOD 500). Our CDs, including plans, details, schedules, sections, elevations, specifications, code-ready sheets, and final as-built records, ensure design intent is clearly communicated to the construction (on-site) team. We make sure spatial layouts, material choices, building systems, and architectural elements align with the project's goals, the client's needs, and regulatory requirements. From early schematic plans to advanced construction details, each drawing is developed with accurate dimensions, annotations, assembly information, and code compliance notes to ensure seamless integration with structural, MEP, and speciality disciplines.
Using advanced platforms such as Revit, AutoCAD, and BIM-driven workflows, we produce documentation that is geometrically precise, clash-free, and aligned with international quality standards. Our team follows a rigorous QA/QC process to eliminate inconsistencies, reduce RFIs, streamline coordination, and provide contractors with dependable, build-ready information.
With proven expertise over a decade, Techture has delivered 1100 completed projects with a strong focus on clarity, technical accuracy, and execution efficiency. With our advanced BIM services, we help project teams minimise errors, accelerate approvals, enhance construction planning, and deliver high-quality outcomes with confidence.
The shop drawings are generated using 3D BIM Models and hence are consistent with no scope of manual errors. If there are any updates to the model, the plans, sections, details and schedules all update in real time, ensuring correct data in every construction document.
The shop drawing process creation can be automated for a lot of disciplines, ensuring that all the outputs are generated extremely fast and according to a set of defined rules and standards.
Since we build virtual, we put in a lot of thought into value engineering and planning into how costs, delays and wastage can be reduced. Use of BIM based shop drawing workflows encourages off-site and prefab construction which also contributes to a more sustainable project.
Accurate Build Documents
Reduce errors and costly rework with precise, clear, and fully coordinated drawings.
Smooth Construction Workflow
Our construction documents ensure contractors have every detail they need for efficient on-site execution.
Regulatory Compliance
Code-compliant drawings that meet local standards, supporting approvals and permits without delays.
Collaboration Ready
All deliverables align multiple disciplines, keeping stakeholders on the same page.
Explore Techture’s global project portfolio, showcasing a decade of expertise in delivering high-quality Building Information Modeling (BIM) services for the AEC industry.
Trusted, Reliable, and Committed
Would you like to know more about our BIM and VDC Services & Solutions? Our Consultants and Engineers will be happy to help you.
Hear directly from our pleased clients about how our BIM solutions and Virtual Design and Construction (VDC) services transformed their project management strategy. These success stories demonstrate Techture's BIM/VDC Consulting Services that improve productivity, accuracy, and overall construction project success.







Connect with us to Streamline your construction process, reduce costs, and improve project efficiency with our expert-driven BIM & VDC solutions. To ensure seamless coordination, minimizing errors and delays, we help you to optimize workflows and maximize project success.
Complete sets of schematic, development, and construction documents covering plans, sections, elevations, and details.
We use Revit for BIM-based coordination and CAD Drafting for precise 2D documentation.
Yes. Our drawings meet local building codes and standards for smooth permit approvals.
We provide documentation for Schematic Design (SD), Design Development (DD), and Construction Documentation (CD).
Absolutely. Our packages align architectural drawings with structural and MEP systems to avoid clashes.
Yes. They include full dimensions, annotations, and specifications for easy on-site execution.
Yes — we offer both detailed CAD drawings and fully coordinated BIM outputs.
DWG, PDF, and Revit files — ready for sharing with stakeholders, consultants, or contractors.