Our fully coordinated shop drawing services bring the design intent into the fabrication & installation document. Our team of highly qualified experts extracts shop drawings directly from BIM models. This ensures complete alignment between digital coordination and on-site execution for architects, contractors, sub-contractors, fabricators, manufacturers, suppliers, owners, and developers. We specialize in architectural, structural, and MEP shop drawings, helping clients with constructability, accuracy, and industry standards. We make sure each drawing has all essential details (dimensions, annotations, material specifications, and connection details) for assembling and fabricating the components.
Our experts use leading software such as Autodesk Revit, AutoCAD, Navisworks, and BIM 360 to edge you with seamless coordination and model integrity. Depending on the project clients' demand and requirements, we deliver drawings from LOD 300 to LOD 450. We collaborate closely with different stakeholders such as contractors, consultants, & fabricators, to ensure the timely delivery of accurate model and shop drawings so that they minimize rework, avoid clashes, and streamline construction execution.
With a strong portfolio of 1000+ completed projects, we have helped 300+ clients to find their specific BIM needs. Since 2014, we have delivered to our clients a precise and detailed model that turns complex data into a reliable and efficient workflow.
.png)
At Techture, we provide our clients with highly detailed, fabrication-ready shop drawings that simplify and streamline their construction. We focus on the specific components of a project, covering structural steel, HVAC, electrical systems, and custom architectural elements. Unlike general construction drawings, shop drawings give contractors and fabricators the exact specifications they need for accurate manufacturing, assembly, and installation. By partnering with us, you will reduce on-site errors, save time, and gain better control over your project execution.
Explore Techture’s global project portfolio, showcasing a decade of expertise in delivering high-quality Building Information Modeling (BIM) services for the AEC industry.
The shop drawings are generated using 3D BIM Models and hence are consistent with no scope of manual errors. If there are any updates to the model, the plans, sections, details and schedules all update in real time, ensuring correct data in every construction document.
The shop drawing process creation can be automated for a lot of disciplines, ensuring that all the outputs are generated extremely fast and according to a set of defined rules and standards.
Since we build virtual, we put in a lot of thought into value engineering and planning into how costs, delays and wastage can be reduced. Use of BIM based shop drawing workflows encourages off-site and prefab construction which also contributes to a more sustainable project.
Consistent Drawings
The shop drawings are generated using 3D BIM Models and hence are consistent with no scope of manual errors. If there are any updates to the model, the plans, sections, details and schedules all update in real time, ensuring correct data in every construction document.
Quick & Accurate
The shop drawing process creation can be automated for a lot of disciplines, ensuring that all the outputs are generated extremely fast and according to a set of defined rules and standards.
Build Offsite
Since we build virtual, we put in a lot of thought into value engineering and planning into how costs, delays and wastage can be reduced. Use of BIM based shop drawing workflows encourages off-site and prefab construction which also contributes to a more sustainable project.
Trusted, Reliable, and Committed
Would you like to know more about our BIM and VDC Services & Solutions? Our Consultants and Engineers will be happy to help you.
Hear directly from our pleased clients about how our BIM solutions and Virtual Design and Construction (VDC) services transformed their project management strategy. These success stories demonstrate Techture's BIM/VDC Consulting Services that improve productivity, accuracy, and overall construction project success.







Connect with us to Streamline your construction process, reduce costs, and improve project efficiency with our expert-driven BIM & VDC solutions. To ensure seamless coordination, minimizing errors and delays, we help you to optimize workflows and maximize project success.
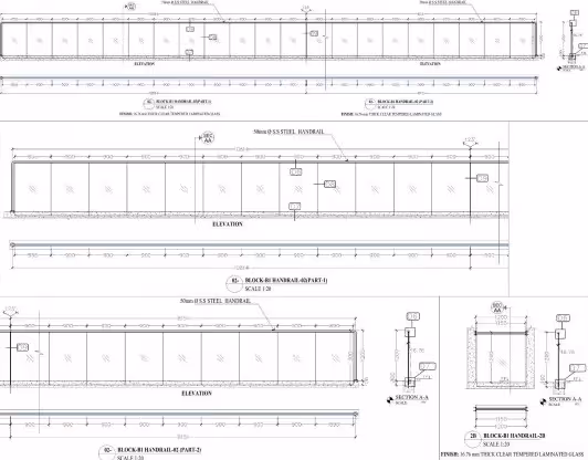
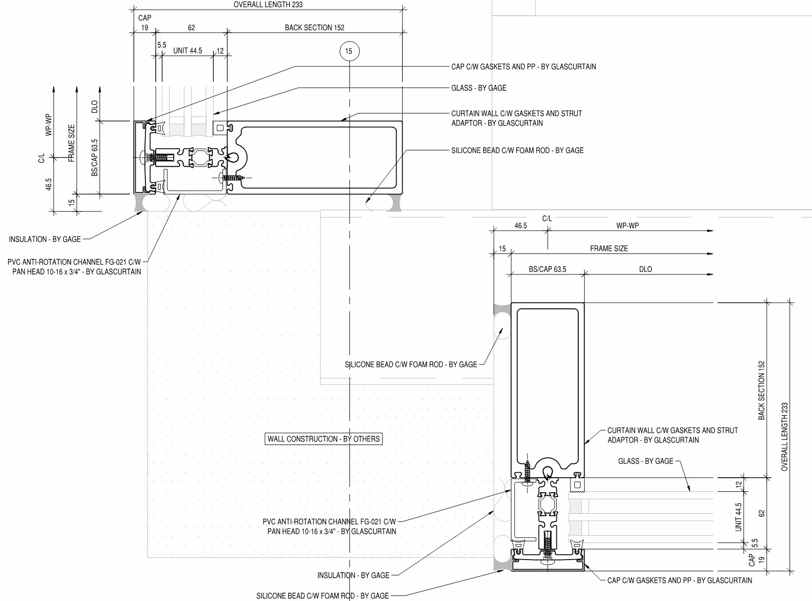
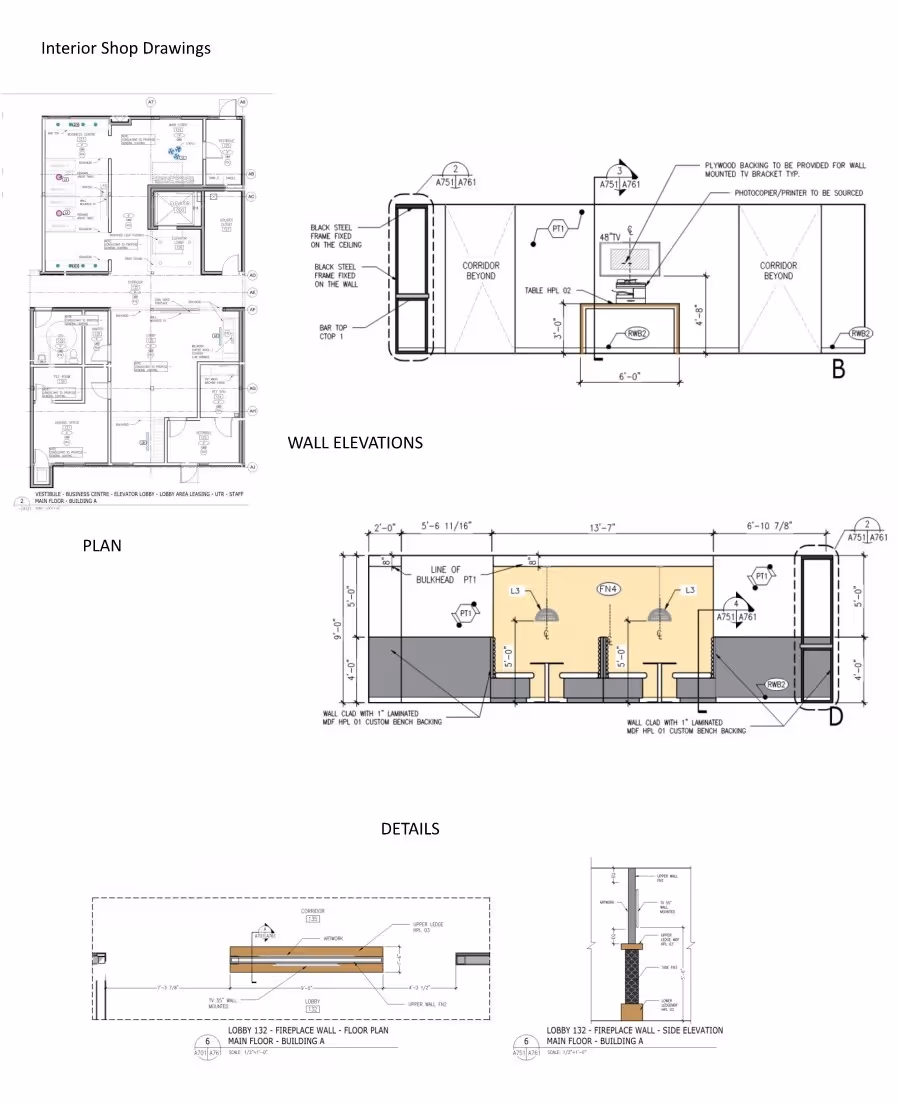
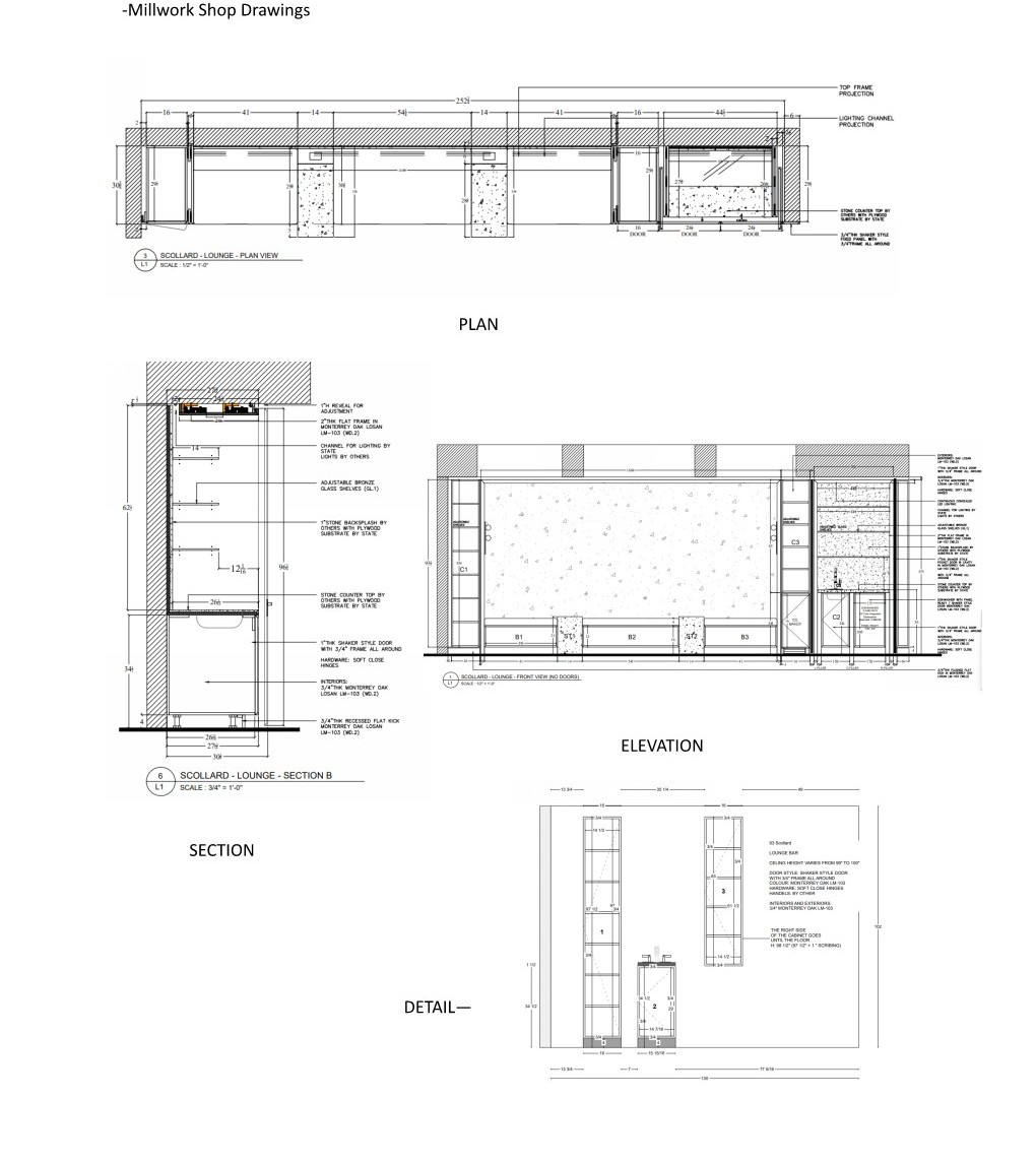
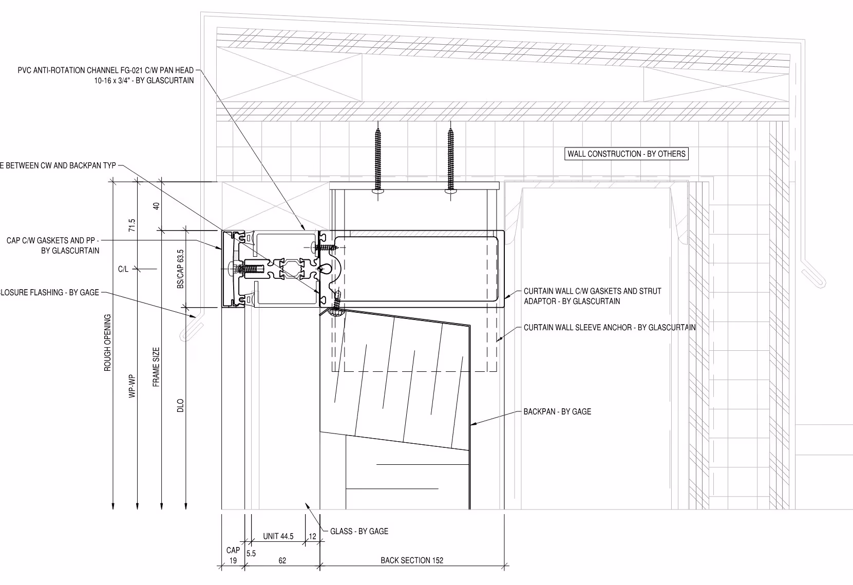
Shop drawings, vital for contractors and fabricators, interpret design intent and guide manufacturing and installation. Generated post-contract signing, these detailed documents include component identification, interference details, and coordinates for precise site placement. They ensure adherence to industry standards and codes. Shop drawings cover diverse elements from beams to equipment, offering clarity through section views and notes on changes. Each subcontractor creates their set, contributing to seamless coordination. Key details, like project information and fabrication standards, are presented in a title block. These documents, more detailed than Issued for Construction (IFC) drawings, play a pivotal role in achieving accurate construction outcomes.
Shop Drawing Services consist of detailed drawings created by contractors or fabricators showing how specific components will be manufactured and installed. These drawings provide a clear visual representation of design intent, which helps in the construction process.
Shop Drawing Services encompass detailed, customized drawings created by contractors or fabricators, illustrating how specific components will be manufactured and installed. These drawings provide a clear visual representation of design intent, materials, and dimensions, aiding in the construction process.
At Techture, we use all the compatible and industry-specific softwares like Autodesk AutoCad & Revit. Our team's strong skill in these software makes sure that the drawings are coordinated and accurate.
The main difference between Shop drawings and design drawings is that design drawings provide an overall layout of the project whereas shop drawings provide details and accurate plans for fabrication and installation. Shop drawings focus more on the technical front which is essential for accurate construction and execution.
Shop drawings are important for several reasons:
Yes, shop drawings do use 3D models as a foundation, offering several advantages:
The speed of shop drawing processes can vary depending on several factors, including the complexity of the project, the level of detail required, the efficiency of communication among stakeholders, and the tools and technologies used. In some cases, shop drawing processes can be relatively fast, especially with the aid of advanced software and collaborative platforms. However, in complex projects or situations where coordination challenges arise, the process may take more time to ensure accuracy and adherence to design specifications. Efficient communication and collaboration among project participants are key factors in expediting the shop drawing process.
Yes, shop drawings play a crucial role in off-site construction. They provide detailed information about how components or modules should be fabricated, assembled, and installed. For off-site or prefabrication processes, these drawings serve as a guide for manufacturers or fabricators, ensuring that the constructed elements meet design specifications. The detailed information in shop drawings enhances efficiency in off-site construction by providing clear instructions for the assembly and production of components before they are transported to the construction site. This can lead to time and cost savings during the overall construction process.
The use of BIM in shop drawings offers several advantages: